Gazebos để cho bằng tay của chính bạn làm bằng gỗ: hình ảnh trong các biến thể và giải thích khác nhau được đưa ra trong tài liệu này. Khi đã quyết định xây dựng một vọng lâu bằng tay của chính bạn ở trong nước, bạn nên nhớ rằng tất cả các kích thước phải luôn được kiểm tra hai lần chỉ cho trang web của bạn, cho chiều rộng của vật liệu và thậm chí vì các tính năng có thể có của các công cụ.
Vọng lâu trong nước là một yếu tố cần thiết và quan trọng. Nó làm cho trang web ngay lập tức ấm áp hơn và thoải mái hơn, bạn muốn đến đất nước thường xuyên nhất với cả gia đình. Chúng tôi cung cấp các đề án cụ thể với một mô tả về giai đoạn xây dựng của một trong những lựa chọn cho một vọng lâu bằng gỗ cho một nơi cư trú mùa hè. Suy nghĩ trước về Làm thế nào để thoát khỏi nốt ruồi trong nước một cách đơn giản.
Chúng tôi xây dựng một vườn cây từ một cái cây:
- Xóa các trang web được chọn để xây dựng. Để loại bỏ các gốc cây và snags đã ở giai đoạn xây dựng ban đầu, bởi vì, xa hơn sẽ khó thực hiện hơn;
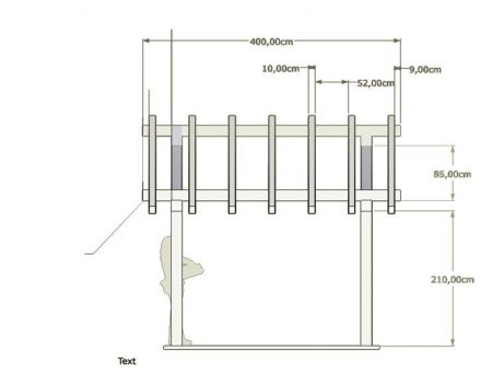
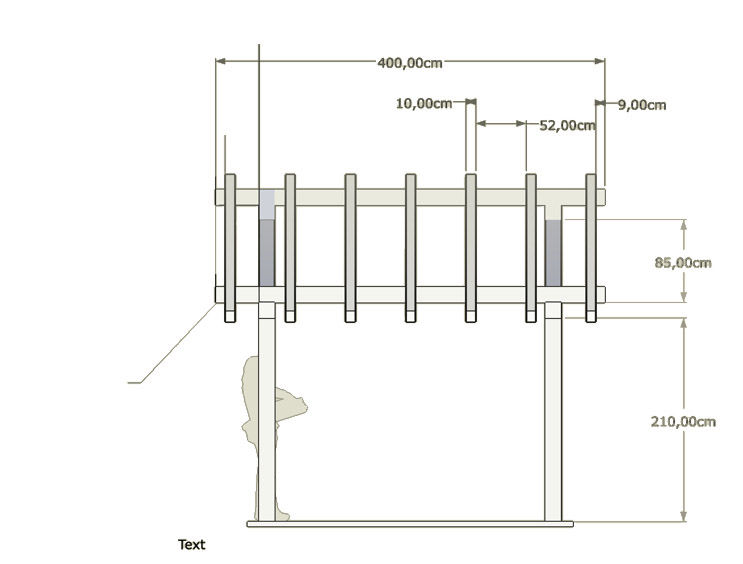
- Tạo bản vẽ của riêng bạn. Các bản vẽ được thiết kế cho một vọng lâu với sức chứa khoảng 15 người;
- Chỉ định một nơi cho nền móng, đào một cái lỗ có kích thước phù hợp, làm ván khuôn;
- Vọng lâu là một căn phòng mở, nhưng thiết kế vẫn phải được làm chắc chắn. Rốt cuộc, nó nên bảo vệ khỏi mưa và gió, đứng cả năm trong không khí mở;
- Lắp đặt khung dọc hỗ trợ, sau đó tạo dầm sàn. Để kết nối cấu trúc dọc, các bản ghi đặc biệt được sử dụng, tất cả điều này được bao phủ bởi một bảng (bạn có thể sử dụng ván sàn thông thường);
- Tiếp theo, phủ gỗ bằng sơn lót, và sơn lót sâu. Sau đó, nếu muốn, bạn có thể sơn vọng gỗ bằng bất kỳ màu nào bạn thích. Màu pastel hiện đang là mốt, nhưng điều này không có nghĩa là giá của căn hộ của bạn cho một nơi ở mùa hè tự làm từ một cây sẽ thay đổi nếu bạn làm cho nó màu đỏ, xanh lá cây hoặc cam;
- Mỗi năm nên sơn vọng lâu trên một lớp mới. Điều này sẽ bảo vệ chống ẩm, tăng cường cấu trúc sau một mùa đông dài. Vẽ tranh hàng năm sẽ kéo dài tuổi thọ chung của tòa nhà;
- Mái nhà được làm tốt nhất bằng phẳng và hơi cách nhiệt. Sự lựa chọn vật liệu cho mái nhà có thể là bất kỳ, nhưng điều quan trọng là phải đảm bảo rằng nước mưa có thể tự do thoát ra và không tích tụ trên mái nhà. Đối với điều này, một ống thoát nước cơ bản được thực hiện;
- Gần vọng lâu, một số đào một cái hố lên đến 70 cm. Đổ đá nghiền xuống và bằng cách này tạo ra hệ thống thoát nước nhân tạo sẽ giúp thoát nước thải;
- Sau khi arbor đã sẵn sàng, bạn có thể lắp đặt bàn ghế, thịt nướng và các phụ kiện khác trong đó, biến một cấu trúc bằng gỗ bình thường thành một ngôi nhà mùa hè ấm cúng và xinh đẹp;
Tư vấn! Vọng lâu trong bản vẽ này là mở. Nếu bạn muốn bảo vệ bản thân khỏi những con mắt tò mò, cộng với thêm vào đó tạo ra sự thoải máiBạn có thể sử dụng mái hiên đặc biệt hoặc vải tuyn nhẹ.
Đây là những giai đoạn chính của việc xây dựng, nhưng, trước khi bắt đầu bất kỳ công việc nào, bạn cần tìm bản thiết kế, hình ảnh của vọng lâu cho một ngôi nhà gỗ tự làm. Tiếp theo, tính toán số lượng vật liệu cần thiết để tạo ra thiết kế của bạn, một lần nữa kiểm tra tất cả các kích thước, kể lại mọi thứ. Chỉ sau đó, người ta mới có thể tiến hành việc tạo trực tiếp cấu trúc chính nó. Nếu cách tiếp cận ban đầu là đúng, thì không còn nghi ngờ gì nữa, cây thông của bạn từ một cái cây sẽ trở nên tuyệt vời, ấm cúng và đẹp đẽ.
Có nhiều lựa chọn khác nhau về cách làm vọng lâu cho ngôi nhà mùa hè từ cây.Hình ảnh sẽ giúp ích ở đây, bạn nên bắt đầu bằng cách chỉ xem một bức ảnh của các cấu trúc, và sau đó, dưới loại bạn thích, hãy tìm bản vẽ của bạn. Chúng tôi chắc chắn rằng nhiều bản vẽ từ tài liệu này sẽ nhắc bạn đến những suy nghĩ đúng đắn. Và nếu không có sự tự tin nào cả, thì bạn luôn có thể mua một vọng lâu bằng gỗ đúc sẵn trong cửa hàng. Khi nó được chuyển đến trang web, bạn chỉ cần thu thập nó và tận hưởng buổi tối mùa hè ấm áp dễ chịu với gia đình thân yêu của bạn.




Tại sao một nhà kính mở đầu?
Nhà kính "Bướm", có đáng không?
Tự làm cảnh quan của một khu vực rộng 8 mẫu Anh: các tính năng của quy hoạch và phân vùng
Nhà kính, ưu và nhược điểm